Villa Malaga | Calm beach

Uitdaging:
Een gezin vroeg mijn hulp bij het inrichten van hun vakantiewoning aan de zonnige zuidkust van Spanje. Hun wens: een frisse, mediterrane stijl die past bij de omgeving én comfort biedt voor het hele gezin.
Oplossing:
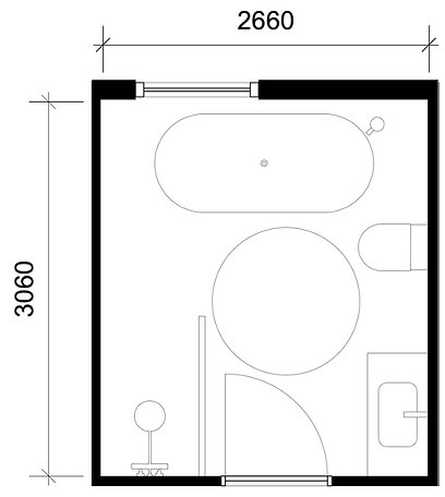
Ik ontwierp een compleet interieuradvies voor de villa, inclusief entree, woonkamer, keuken, zes slaapkamers, twee badkamers en een speel/tv-kamer. De stijl werd doorvertaald in moodboards, 2D indelingsplannen met maatvoering, kleur- en materiaalplannen, meubels, verlichting en accessoires. Alles werd zorgvuldig uitgewerkt, gevisualiseerd en overzichtelijk samengebracht in shoplijsten.
Resultaat:
Een modern vakantiehuis met een warme, Spaanse uitstraling – helemaal afgestemd op het gezin en hun wensen.
“Dankzij Maison Match voelt het echt als een tweede thuis.”

Entree



Woonkamer
Tekeningen




Keuken




Slaapkamer 1





Slaapkamer 2

Slaapkamer 3



Slaapkamer 4






Slaapkamer 5

Slaapkamer 6



Badkamers








Speel/televisie kamer



